Топка ТЛП 1,1х3,32 в Уральске

ТЛПХ-1.1/3.32 топка
Топка ТЛПХ-1.1/3.32
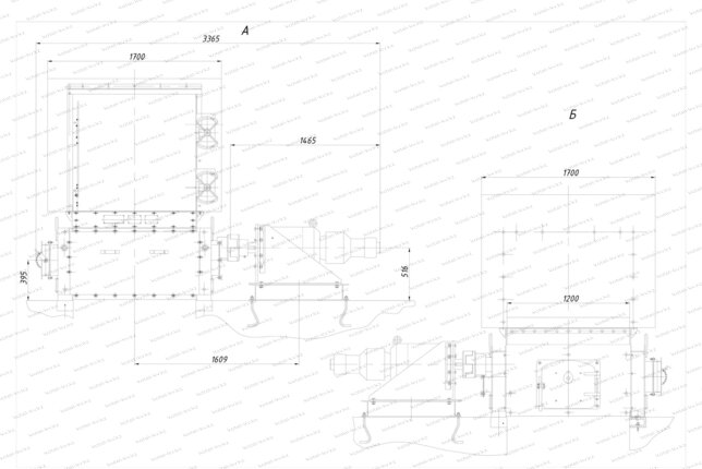
Топка ТЛПХ-1.1/3.32 чертеж
Чертеж топки ТЛПХ-1.1/3.32
Механическая топка ТЛПХ-1.1/3.32 котла КВм
Топка ТЛПХ-1.1/3.32 котла КВм
Котел КВм с топкой ТЛПХ-1.1/3.32
Котел КВм с топкой ТЛПХ-1.1/3.32
Изготовление топки ТЛПХ-1.1/3.32
Изготовление топки ТЛПХ-1.1/3.32
Колосниковое полотно ТЛПХ-1.1/3.32
Колосниковое полотно ТЛПХ-1.1/3.32
Производство топок ТЛПХ-1.1/3.32 котла КВм
Производство топок ТЛПХ-1.1/3.32 котла КВм
Топка с ленточной колосниковой решеткой прямого хода ТЛПХ-1.1/3.32
Топка с ленточной колосниковой решеткой прямого хода ТЛПХ-1.1/3.32
Топка с ленточным полотном ТЛПХ-1.1/3.32 чертеж
Чертеж топки с ленточным полотном ТЛПХ-1.1/3.32
ТЛПХ-1.1/3.32 топка
Топка ТЛПХ-1.1/3.32 чертеж
Механическая топка ТЛПХ-1.1/3.32 котла КВм
Котел КВм с топкой ТЛПХ-1.1/3.32
Изготовление топки ТЛПХ-1.1/3.32
Колосниковое полотно ТЛПХ-1.1/3.32
Производство топок ТЛПХ-1.1/3.32 котла КВм
Топка с ленточной колосниковой решеткой прямого хода ТЛПХ-1.1/3.32
Топка с ленточным полотном ТЛПХ-1.1/3.32 чертеж
Цена
33 822 480 ₸
От 33 822 480 ₸ с доставкой до г.
  • Механическая топка прямого хода с ленточным колосниковым полотном ТЛПХ
  • Работа на каменном и буром угле, антрацитах
  • Позонное деление воздуха для эффективного процесса горения

Технические характеристики топку ТЛП 1,1х3,32

Вид топкиМеханическая ТЛПХ
Марка топкиТЛП 1,1х3,32
Максимальный размер куска40 мм
Содержание мелочи (0-6 мм), не более40 %
Зольность топлива, не более25 %
Выход летучих, не менее20 %
Активная площадь решетки горения3.1 м²
Диапазон изменения нагрузки50-100 %

Механическая топка ТЛП 1,1х3,32 в Уральске

Механическая топка ТЛПХ 1,1х3,32 с ленточной колосниковой решеткой прямого хода предназначена для сжигания каменного и бурого угля, устанавливается в отопительных котельных с механизированной подачей топлива. Топки работают в автоматическом режиме и обеспечивают следующие функции: подача топлива на топливную решетку, сброс золы и шлака в канал шлакоудаления.

Сфера применения топки ТЛП 1,1х3,32

Механизированная твердотопливная топка ТЛП 1,1х3,32 устанавливается с водогрейными котлами КВм, применяется для отопления, горячего водоснабжения и вентиляции различных объектов:
  • крупные производственные и административные здания.
  • больницы, школы, детские сады, санатории, клубы, магазины.
  • теплицы, фермы, птицефабрики.
  • устанавливается в угольных отопительных котельных для отопления жилых помещений.

Преимущества топки ТЛП 1,1х3,32

  • механизированная подача топлива и удаление шлака;
  • позонное деление топки позволяет распределить необходимое количество воздуха в каждую зону;
  • зона подсушивания позволяет работу на влажном топливе.

Устройство топки ТЛП 1,1х3,32

Механизированная топка ТЛП 1,1х3,32 представляет собой устройство, состоящее из рамы с приводом, угольного ящика и ленточного колосникового полотна, включающего ведущие и ведомые валы. Колосники бывают трех типов: крайние, ведущие и ведомые. Угольный ящик расположен в передней части топки. Под колосниковой решеткой находятся камеры, куда подается воздух для горения. Важно, чтобы подача воздуха была непрерывной, иначе слой топлива может спечься, а колосниковое полотно деформируется. Количество подаваемого воздуха регулируется воздушными шиберами.

Топка оснащена дверками на боковых панелях для наблюдения за слоем топлива и люками для удаления золы и шлака. Подсушка топлива перед подачей на колосниковую решетку позволяет использовать влажное топливо без колебаний температуры.

Принцип работы топки ТЛП 1,1х3,32

Уголь в угольный ящик топки ТЛП 1,1х3,32 подается транспортером топливоподачи. Через угольный ящик самотеком осуществляется загрузка топлива на движущееся колосниковое полотно. Уголь на колосниковом полотне сжигается в слое 100-200 мм, при поперечной схеме движения слоя топлива и потоков воздуха в верхнем зажигании. Определенная толщина слоя топлива на колосниковой решетке топки ТЛПХ поддерживается при помощи регулятора слоя в угольном ящике и производится вручную посредством маховиков через червячные передачи редукторов. Количество подаваемого в топку ТЛПХ угля регулируется путем изменения скорости движения колосникового полотна.

Под колосниковой решеткой организованы камеры, куда подается необходимый воздух для горения. Подача воздуха обязательно должна быть непрерывна, иначе происходит спекание слоя и пережог колосников, Количество подаваемого воздуха регулируется величиной открывания воздушных шиберов. Воздух под колосниковую решетку и на вторичное дутье подается от одного вентилятора котельной установки. Под верхней ветвью колосникового полотна располагаются дутьевые короба с зонами дутья и поворотными шиберами. Подвод воздуха под топку ТЛПХ 1,1-4,25 односторонний, c противоположной стороны предусмотрены окна для очистки дутьевых коробов от провала золы.

В передней части рамы топки ТЛП 1,1х3,32 на боковых щеках расположены окна для ремонта колосникового полотна. Окна для очистки от провала закрыты люками, а окна для ремонта в передней части закрыты крышками.

Удаление шлака с колосниковой решетки топки ТЛП 1,1х3,32 происходит в задней части топки за счет движения колосникового полотна при его повороте вокруг ведущего вала, которое приводится в движение приводом. Удаление шлака из шлакового канала производится транспортером шлакозолоудаления.

Купить топку ТЛП 1,1х3,32 в Уральске

Для того, что бы купить механическую топку ТЛП 1,1х3,32 в Уральске вы можете сделать заявку по телефону +7-7172-69-59-73, либо оформить заявку онлайн. Менеджеры дадут консультацию по подбору вспомогательного оборудования для выбранных вами моделей и рассчитают стоимость доставки. Транспортирование котлоагрегата и вспомогательного оборудования до объекта осуществляется автомобильным транспортом.

Вспомогательное оборудование для работы топку ТЛП 1,1х3,32

ДО-1М дробилка
Цена по запросу
Дымосос ДН 9
Цена 1 471 704 тг.
Золошлакоудаление УСШ скребковое
Цена 7 314 000 тг.
Колосник ведомый крайний 23.1603.007 (084) топки ТЛПХ
Цена по запросу
Скребковая углеподача УСУ
Цена 7 632 000 тг.
Циклон ЦН 15 800 4УП
Цена 3 612 480 тг.

Сертификат и качество топку ТЛП 1,1х3,32

Сертификат на топки
Сертификат на топки

Собственное производство

Котельный завод производит
  • Паровые котлы от 300 кг до 2.5 тонны пара в час
  • Промышленные водогрейные котлы от 150 КВт до 4 МВт на всех видах топлива
  • Механические топки ТШПМ, шурующая планка и ТЛПХ, ленточное полотно прямого хода
  • Циклоны для очистки воздуха и дымовых газов для производств и промышленных отраслей
  • Транспортеры и системы топливоподачи и шлакоудаления
Подробнее о производстве
Собственное производство
Смотреть видео
с производства